Nutzen Sie auch unser Kontaktformular.
Objektbeschreibung
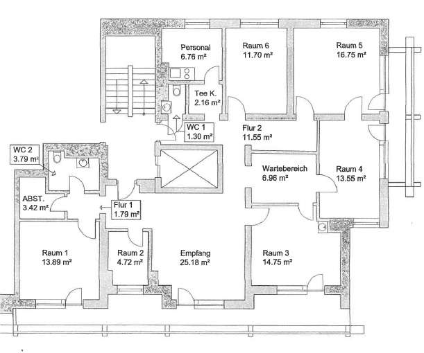
Zum Verkauf steht eine derzeit leerstehende Büro- bzw. Praxiseinheit mit ca. 152 m² Fläche, die durch eine durchdachte Raumaufteilung und eine sehr angenehme Arbeitsatmosphäre überzeugt.
Die Einheit ist aktuell in sechs Büro- bzw. Praxisräume aufgeteilt. Mittelpunkt ist ein großzügiger Empfangsbereich mit angeschlossenem Wartebereich. Ergänzt wird das Raumangebot durch einen separaten Personalraum mit Teeküche, zwei WCs sowie einen Abstellraum.
Besonders hervorzuheben ist die durchdachte Zugangssituation mit getrennten Eingängen für Personal und Kunden, die einen reibungslosen und diskreten Ablauf im täglichen Betrieb ermöglicht. Die Räumlichkeiten sind barrierefrei zugänglich und damit vielseitig nutzbar.
Aus nahezu jedem Raum eröffnet sich ein malerischer Bergblick, der dem Arbeiten eine besondere Qualität verleiht. Zwei großzügige Balkone erweitern die Nutzfläche nach außen. Ein Tiefgaragenstellplatz rundet das Platzangebot sinnvoll ab.
Die Immobilie eignet sich ideal für Praxisbetriebe, Kanzleien oder Büronutzungen, die Wert auf Funktionalität, Struktur und eine zentrale Innenstadtlage legen.
Lage
Das Rosenheimer Ärztehaus gilt als Kompetenzzentrum für Heilberufe. Entsprechend ist dieses Angebot für branchennahe Gewerbetreibende sicherlich interessant. Der Bahnhof ist fußläufig nur wenige Minuten entfernt. Alle Geschäfte des täglichen Bedarfs sind bequem zu Fuß zu erreichen, ein Parkhaus befindet sich in unmittelbarer Nähe - mit Auto, Bus oder Bahn sind sie von hier aus sehr flexibel.
Ausstattung
* Büro/Praxisräume im Ärztehaus
* ca. 152m² Gewerbefläche
* 6. OG mit Lift
* beste Lage, perfektes Umfeld
* barrierefrei
* Traumblick!
* perfekte Infrastruktur
* Kellerabteil
* TG-Stellplatz
Energiekennwerte:
Baujahr: 1975
Befeuerung: Fernwärme-Zentralheizung
Energieausweis: Verbrauchsausweis
Energiewert: 115,87 kWh/(m²*a)
Energieeffizienzklasse: D
Energieausweis
| Energieausweistyp: | Verbrauchsausweis |
| Gültig bis: | 25.06.2028 |
| Baujahr lt. Energieausweis: | 1975 |
| Primärenergieträger: | Fernwärme |
| Endenergiebedarf: | 115.87 kWh/(m²·a) |
| Energieeffizienzklasse: | D |
| Ausstellungsdatum: | 25.06.2018 |
